Speicherherstellung & Sonderanfertigung in Deutschland
Entwicklung und Produktion hochwertiger Energie-Speicher-Systeme in Bayern. Fertigungspartner für Industrie und Handwerk. Unser Produktportfolio umfasst: Sonderbehälterbau, Tank- und Anlagenbau, Speichertechnik mit Edelstahlspeicher, Wasserstoffspeicher, Pufferspeicher für Zentralheizungen und Solaranlagen, Kältepufferspeicher für Klimaanlagen und Kälteanlagen uvm.

Pufferspeicher – Heizungspufferspeicher made in Bayern
Einsatzbereich: Geeignet für Zentralheizungen sowie Solaranlagen, Wärmepumpen-, Festbrennstoffanlagen und Kälteanlagen

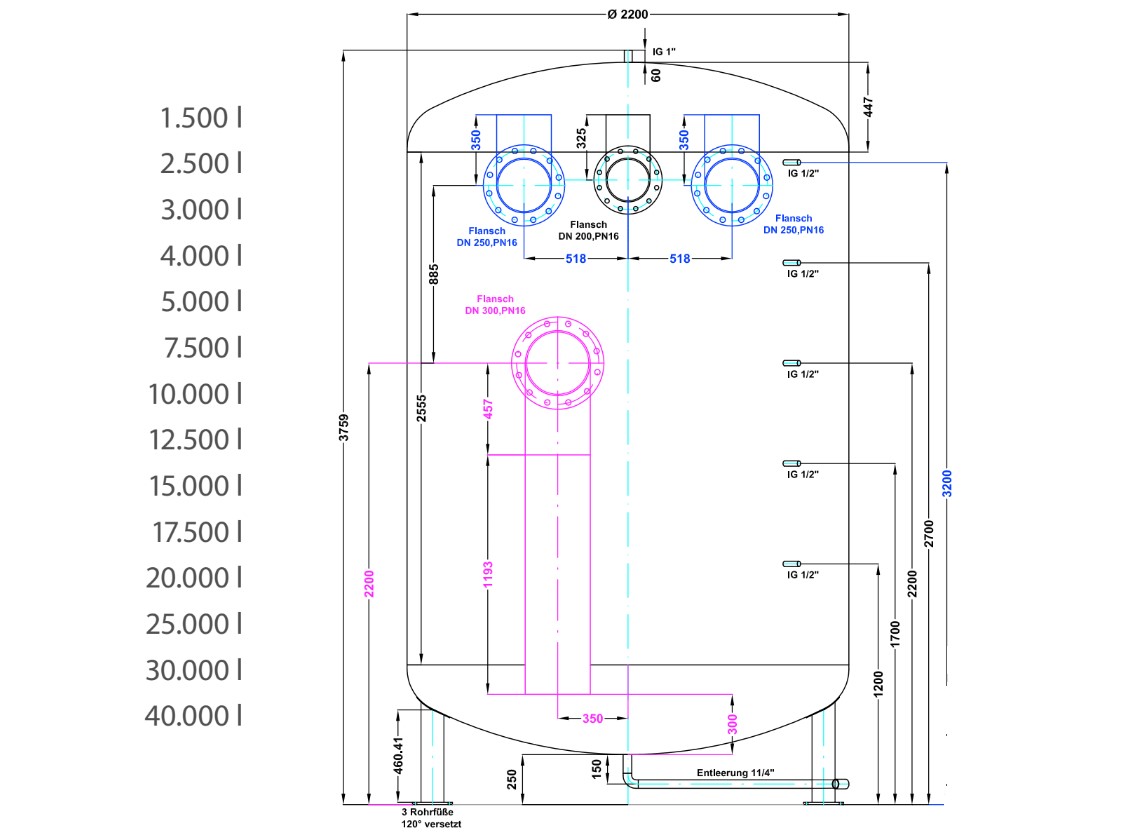
Volumen & Abmessungen der Pufferspeicher – 2500 bis 5000 Liter

Pufferspeicher und Kältepufferspeicher Herstellung
Einsatzbereich: Geeignet für Industrie sowie Kühlpumpen, Abwärmepumpen, Solewärmepumpen, Klimaanlagen und Kälteanlagen

Korrosionsschutz:
Ausführungen aus Qualitätsstahl S235JRG2
innen roh-schwarz,
außen hochpigmentierte zinkstaubhaltige Grundbeschichtung.
Temperaturen und Anschlußdruck:
Betriebsdruck 3 bzw. 6 bar
Betriebstemperatur von 8 bis 50°C
Ausführung:
Ausgerüstet mit 5 Fühlermuffen 3/4“, Entleerung und Entlüftung, einbaubare DN Flansche (siehe Zubehör).
Ausrüstung und Anschlüsse nach Kundenwunsch frei wählbar.
Speicher mit Fußkonstruktion bestehend aus 3 Füßen.
Mannloch: siehe Zubehör
Planbauteile:
Flansch PN6 und PN16 und Muffen in Zoll: DN32 / 40 / 50 / 65 / 80 / 100 / 125 / 150 / 200 / 250
Muffen in Zoll: ½“ / ¾“ / 1“ / 1¼“ / 1½“ / 2“
Isolierung:
Armaflex oder alternativ bauseits oder Angebot über Werksfertigung
Lieferumfang und Alternativen – Pufferspeicher Sonderanfertigung
Lieferumfang: Pufferspeicher aus Qualitätsstahl S235JRG2
Alternativen: Andere Größen und Drücke auf Anfrage. Wir fertigen gerne für Sie Ihre Produkte nach Ihren Zeichnungen
