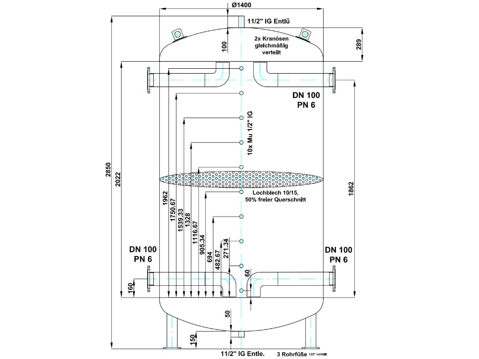
Pufferspeicher für Kälteanlagen – 1000 bis 30.000 Liter
- Sonderanfertigungen und individuell planbar
- Pufferspeicher aus Qualitätsstahl
- Technische Ausführung und Preise auf Anfrage
Kaltwasser Pufferspeicher – Schema, Auslegung, Berechnung, …

Kaltwasser Pufferspeicher Hersteller aus Bayern
technische Beschreibung
Korrosionsschutz:
Ausführungen aus Qualitätsstahl S235JRG2
innen roh-schwarz
außen Schutzlack.
Beklebungsresistent.
Temperaturen und Anschlußdruck:
10°Cmax. Betriebsdruck: 3 bar
Isolierung:
Standard ohne Isolierung
Planbauteile:
Flansche in PN6 und PN16 als DN 32 / 40 / 50 / 65 / 80 / 100 / 125 / 150 / 200 / 250
Muffen in Zoll ½“ / ¾“ / 1“ / 1 ¼“ / 1 ½“ / 2“
Lieferumfang:
Pufferspeicher aus Qualitätsstahl S235JRG2
